






Nu kan vi åbne dørene for denne hyggelige 60'er villa i 1 plan!
Så leder du efter en bolig du kan sætte dit eget præg på, er det nu du skal kigge med!
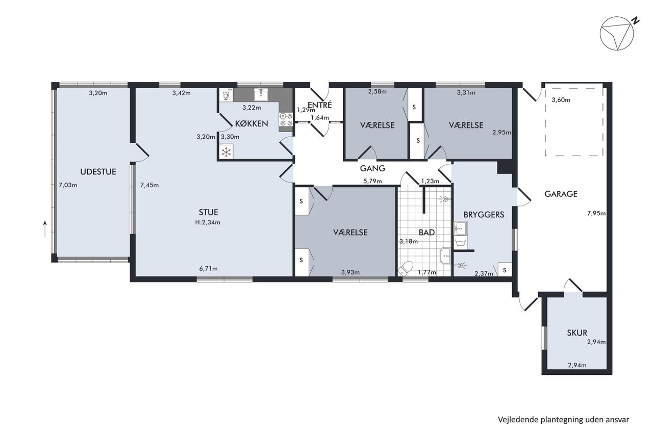
Den gode villa er indrettet med: Møblérbar entre/vindfang, herfra går du direkte ud i fordelingsgangen, som leder dig videre til 3 gode værelser, alle med skabe, et stort badeværelse med gulvvarme og bruseniche, praktisk bryggers med håndvask, fyr, brus og skab. Desuden kan du gå direkte herfra og ud i garagen.
I den anden ende af huset finder du en stor vinkelstue, hvor der er plads til både spise- og sofa-afdelinger. Spisekøkkenet ligger i umiddelbar forbindelse med den store stue, og giver mulighed for et stort åbent køkken/alrum.
Fra stuen er der udgang til udestue.
Fremstår i ældre, men vedligeholdt stand, dog må det forventes at der skal laves noget. Opvarmes med fjernvarme.
Haven er omkranset af hæk og hyggeligt anlagt med græsplæne, bede og enkelte træer. Flisebelagt indkørsel.
Ejendommen er beliggende i kort gåafstand til indkøbsmuligheder, folkeskole (0.-9.kl.), bager, café, offentlig transport og sportshallen med alle de fritidsaktiviteter og arrangementer der findes dér. Fuglebjerg er en aktiv by med mange gode tilbud til børn og voksne i alle aldre.
Nu kan vi åbne dørene for denne hyggelige 60'er villa i 1 plan!
Så leder du efter en bolig du kan sætte dit eget præg på, er det nu du skal kigge med!
Den gode villa er indrettet med: Møblérbar entre/vindfang, herfra går du direkte ud i fordelingsgangen, som leder dig videre til 3 gode værelser, alle med skabe, et stort badeværelse med gulvvarme og bruseniche, praktisk bryggers med håndvask, fyr, brus og skab. Desuden kan du gå direkte herfra og ud i garagen.
I den anden ende af huset finder du en stor vinkelstue, hvor der er plads til både spise- og sofa-afdelinger. Spisekøkkenet ligger i umiddelbar forbindelse med den store stue, og giver mulighed for et stort åbent køkken/alrum.
Fra stuen er der udgang til udestue.
Fremstår i ældre, men vedligeholdt stand, dog må det forventes at der skal laves noget. Opvarmes med fjernvarme.
Haven er omkranset af hæk og hyggeligt anlagt med græsplæne, bede og enkelte træer. Flisebelagt indkørsel.
Ejendommen er beliggende i kort gåafstand til indkøbsmuligheder, folkeskole (0.-9.kl.), bager, café, offentlig transport og sportshallen med alle de fritidsaktiviteter og arrangementer der findes dér. Fuglebjerg er en aktiv by med mange gode tilbud til børn og voksne i alle aldre.



